а357
Проект одноэтажного дома в современном стиле Хайтек.
Он имеет плоскую крышу и чистые прямые линии, подчеркивающие его геометрическую форму. Внешние стены комбинируют белую штукатурку с натуральным камнем, добавляя текстурный контраст.
Дом спроектирован с использованием большого количества остекления, что создает открытое и светлое внутреннее пространство и гармонично соединяет его с окружающей природой.
Он имеет плоскую крышу и чистые прямые линии, подчеркивающие его геометрическую форму. Внешние стены комбинируют белую штукатурку с натуральным камнем, добавляя текстурный контраст.
Дом спроектирован с использованием большого количества остекления, что создает открытое и светлое внутреннее пространство и гармонично соединяет его с окружающей природой.
о проекте
Проект выделяется среди других большой крытой террасой, частично оснащенной ажуром балочной перголы, и большим остеклением.
ЭТАЖНОСТЬ
1
ПЛОЩАДЬ
149.51 м²
ПАРАМЕТРЫ ПРОЕКТА
149.51 м²
Общая площадь
149.51 м²
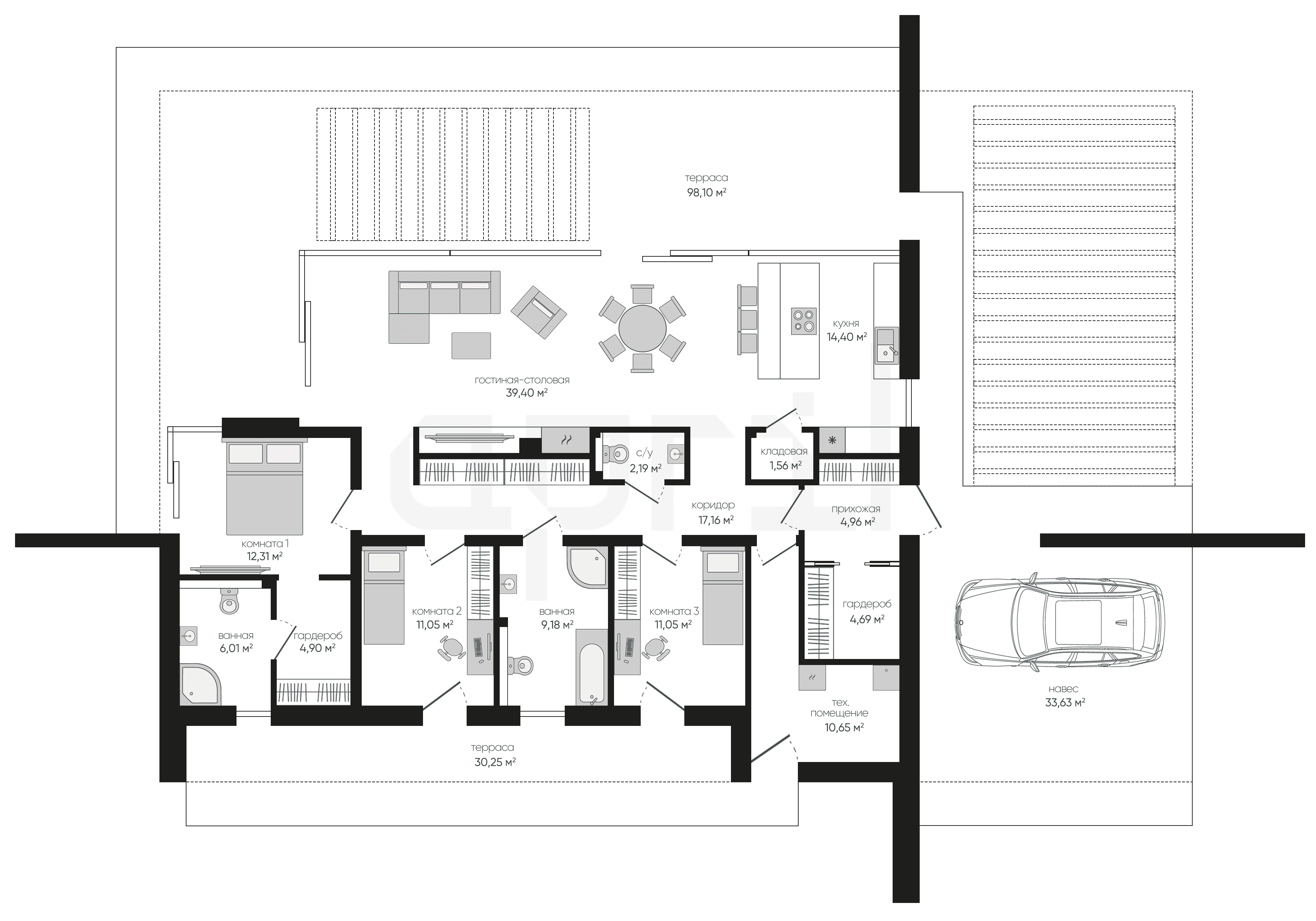
Прихожая
4,96 м²
Гардероб
4,69 м²
Коридор
17,16 м²
Гостиная-столовая
39,40 м²
Кухня
14,40 м²
Кладовая
1,56 м²
С/у
2,19 м²
Комната 1
12,31 м²
Остались вопросы?
Напиши нам.
Напиши нам.
Наш ведущий инженер свяжется с вами в ближайшее время.
ДАННЫЕ ПОЛУЧЕНЫ
данные успешно отправлены
Ведущий инженер компании свяжется с вами в ближайшее время.
Дома 1 этаж
Дома 2 этажа
Дома 1 этаж с гаражом
Дома 120 м2
Дома 150 м2
Дома 2 этажа с гаражом
Дома 200 м2
Дома 250 м2
Дома 3 этажа
Дома в скандинавском стиле
Дома в стиле райта
Дома в стиле хайтек
Дома до 100 м2
Дома с гаражом
Дома с мансардой
Дома с сауной
Дома 1 этаж с гаражом и террасой
Дома 1 этаж с террасой
Дома в стиле барнхаус
Дома в стиле шале
Дома из газобетона
Дома из газобетона 1 этаж
Дома из камня
Дома из керамических блоков
Дома из кирпича
Дома из пеноблоков
Дома с зимним садом
Дома с подвалом
Дома с террасой
Дома с цокольным этажом
Фахверковые дома
Дома с бассейном