а332
Проект современного дома с мансардой и террасой.
Дом прямоугольной формы был покрыт двускатной крышей со слуховым окном. Серый кирпич контрастирует с белой штукатуркой, что придает зданию легкость и визуально снимает тяжесть кирпичного фасада. На крыше использована темная керамическая черепица, контрастирующая со светлым фасадом, что обеспечивает долговечность и прочность кровли.
Дом прямоугольной формы был покрыт двускатной крышей со слуховым окном. Серый кирпич контрастирует с белой штукатуркой, что придает зданию легкость и визуально снимает тяжесть кирпичного фасада. На крыше использована темная керамическая черепица, контрастирующая со светлым фасадом, что обеспечивает долговечность и прочность кровли.
о проекте
Дом с мансардой и террасой предлагает прекрасное сочетание современного дизайна, функциональности и комфорта. Его хорошо продуманные пространства, качественные материалы и стильный внешний вид делают его привлекательным для семейной жизни.
ЭТАЖНОСТЬ
2
ПЛОЩАДЬ
114.93 м²
ПАРАМЕТРЫ ПРОЕКТА
114.93 м²
Общая площадь
114.93 м²
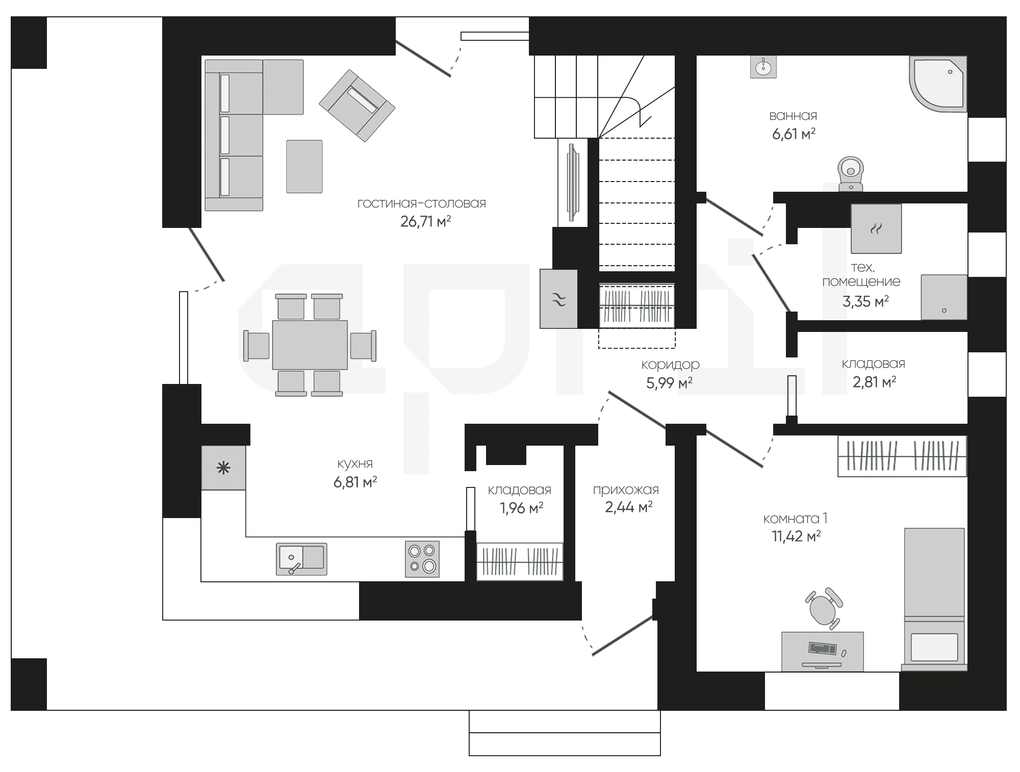
1 Этаж площадь
68,10 м²
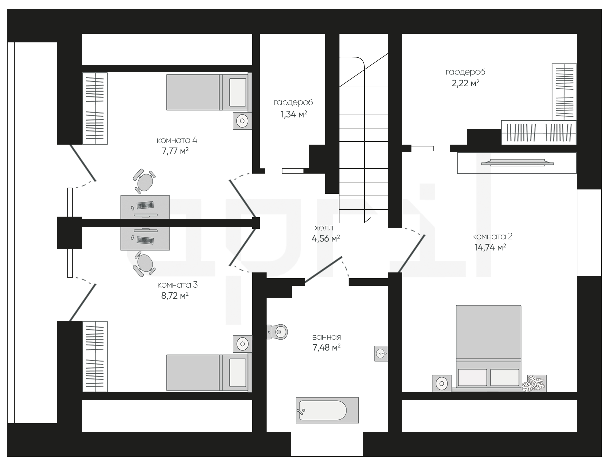
Прихожая
2,44 м²
Коридор
5,99 м²
Гостиная-столовая
26,71 м²
Кухня
6,81 м²
Кладовая
1,96 м²
Комната 1
11,42 м²
Кладовая
2,81 м²
Остались вопросы?
Напиши нам.
Напиши нам.
Наш ведущий инженер свяжется с вами в ближайшее время.
ДАННЫЕ ПОЛУЧЕНЫ
данные успешно отправлены
Ведущий инженер компании свяжется с вами в ближайшее время.
Дома 1 этаж
Дома 2 этажа
Дома 1 этаж с гаражом
Дома 120 м2
Дома 150 м2
Дома 2 этажа с гаражом
Дома 200 м2
Дома 250 м2
Дома 3 этажа
Дома в скандинавском стиле
Дома в стиле райта
Дома в стиле хайтек
Дома до 100 м2
Дома с гаражом
Дома с мансардой
Дома с сауной
Дома 1 этаж с гаражом и террасой
Дома 1 этаж с террасой
Дома в стиле барнхаус
Дома в стиле шале
Дома из газобетона
Дома из газобетона 1 этаж
Дома из камня
Дома из керамических блоков
Дома из кирпича
Дома из пеноблоков
Дома с зимним садом
Дома с подвалом
Дома с террасой
Дома с цокольным этажом
Фахверковые дома
Дома с бассейном