о проекте

Простая конструкция здания, построенная на прямоугольной основе, покрыта двускатной крышей. Конструкцию разнообразили: входная аркада, выступающая столовая, построенная на восьмиугольном плане и большой балкон. Вход был подчеркнут выступающей крышей здания и расположенным в центре слуховым окном.

ЭТАЖНОСТЬ
2
ПЛОЩАДЬ
171.40 м²
1
этаж
2
этаж
ПАРАМЕТРЫ ПРОЕКТА
171.40 м²
Общая площадь
171.40 м²
1 Этаж площадь
100 м²
Прихожая
4 м²
Холл
9 м²
Гостиная
24,50 м²
Кухня-столовая
18,20 м²
С/у
3,80 м²
Комната 1
10 м²
Лестница
2,40 м²
1 этаж
2 этаж
все характеристики
жилой дом
Общая площадь
171.40 м²
1 Этаж площадь
100 м²
Прихожая
4 м²
Холл
9 м²
Гостиная
24,50 м²
Кухня-столовая
18,20 м²
С/у
3,80 м²
Комната 1
10 м²
Лестница
2,40 м²
Техническое помещение
5,50 м²
Гараж
22,60 м²
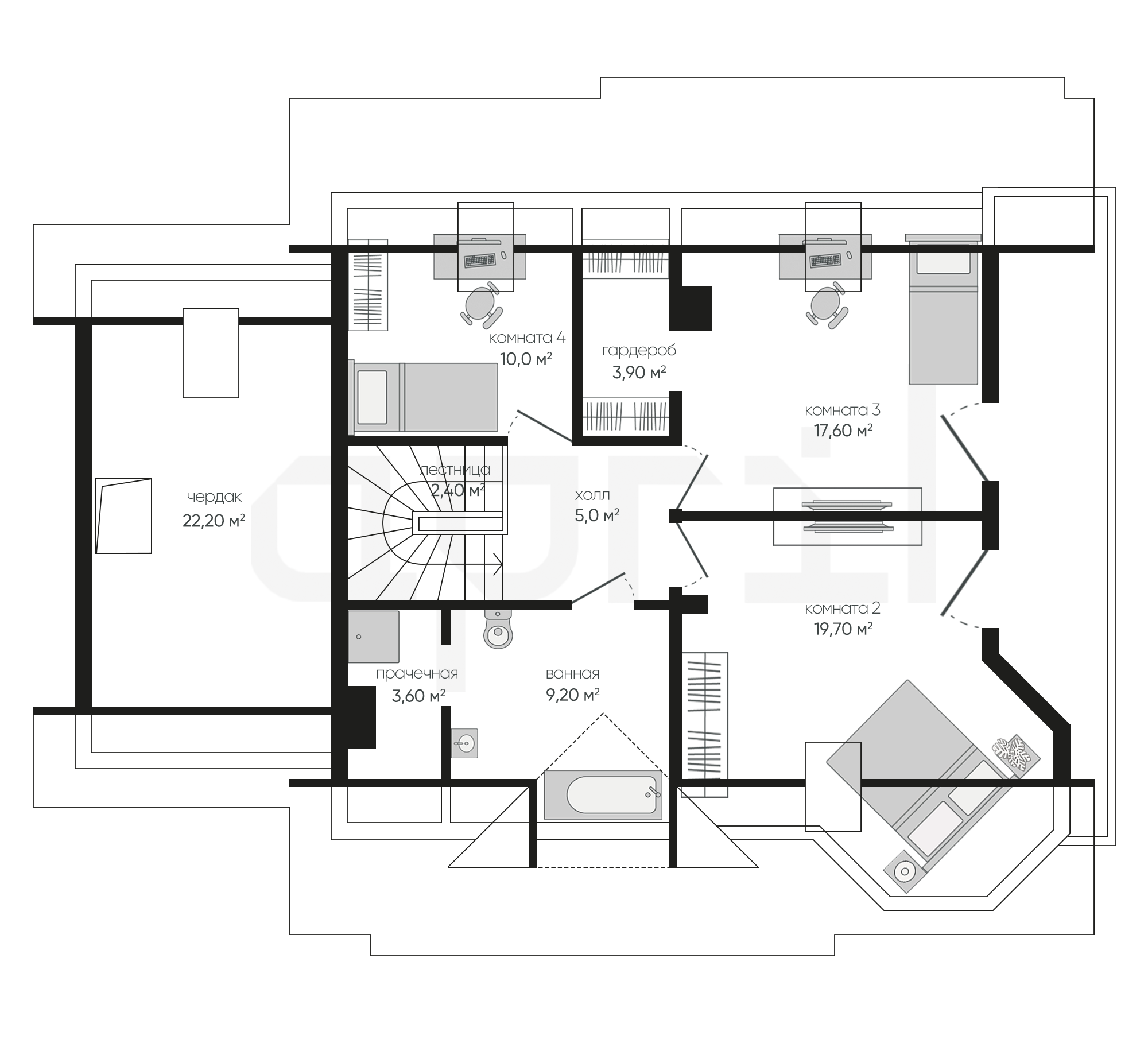
2 Этаж площадь
93,60 м²
Лестница
2,40 м² (2 эт.)
Холл
5 м² (2 эт.)
Ванная
9,20 м² (2 эт.)
Прачечная
3,60 м² (2 эт.)
Комната 2
19,70 м² (2 эт.)
Комната 3
17,60 м² (2 эт.)
Гардероб
3,90 м² (2 эт.)
Комната 4
10 м² (2 эт.)
Чердак
22,20 м² (2 эт.)
планировка
все характеристики
все характеристики
жилой дом
Общая площадь
171.40 м²
1 Этаж площадь
100 м²
Прихожая
4 м²
Холл
9 м²
Гостиная
24,50 м²
Кухня-столовая
18,20 м²
С/у
3,80 м²
Комната 1
10 м²
Лестница
2,40 м²
Техническое помещение
5,50 м²
Гараж
22,60 м²
2 Этаж площадь
93,60 м²
Лестница
2,40 м² (2 эт.)
Холл
5 м² (2 эт.)
Ванная
9,20 м² (2 эт.)
Прачечная
3,60 м² (2 эт.)
Комната 2
19,70 м² (2 эт.)
Комната 3
17,60 м² (2 эт.)
Гардероб
3,90 м² (2 эт.)
Комната 4
10 м² (2 эт.)
Чердак
22,20 м² (2 эт.)
экстерьер
Остались вопросы?
Напиши нам.
Наш ведущий инженер свяжется с вами в ближайшее время.
Обязательно к заполнению
Обязательно к заполнению
ДАННЫЕ ПОЛУЧЕНЫ

данные успешно отправлены

Ведущий инженер компании свяжется с вами в ближайшее время.
мы используем файлы cookie
Используя сайт april-dom.ru, Вы соглашаетесь с использованием файлов cookie, которые указаны в Политике обработки Персональных данных.
/projects/a308/