о проекте

Дом спроектирован с вниманием к деталям, обеспечивает комфортную жизнь и сочетает в себе современные решения с уютной атмосферой.

ЭТАЖНОСТЬ
1
ПЛОЩАДЬ
118.57 м²
1
этаж
2
этаж
ПАРАМЕТРЫ ПРОЕКТА
118.57 м²
Общая площадь
118.57 м²
1 Этаж площадь
96 м²
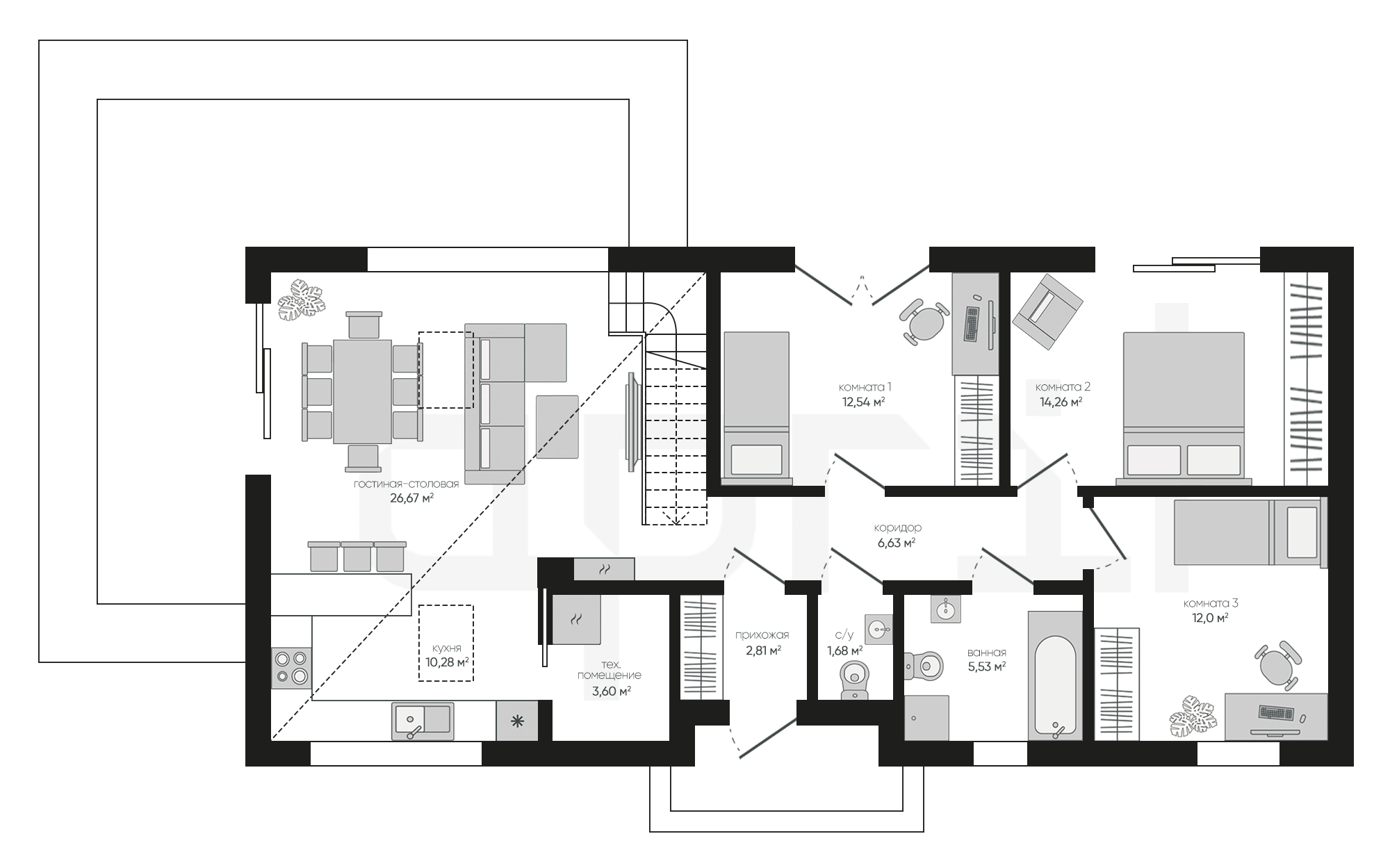
Прихожая
2,81 м²
Коридор
6,63 м²
Гостиная-столовая
26,67 м²
Кухня
10,28 м²
Техническое помещение
3,60 м²
Комната 1
12,54 м²
Комната 2
14,26 м²
1 этаж
2 этаж
все характеристики
жилой дом
Общая площадь
118.57 м²
1 Этаж площадь
96 м²
Прихожая
2,81 м²
Коридор
6,63 м²
Гостиная-столовая
26,67 м²
Кухня
10,28 м²
Техническое помещение
3,60 м²
Комната 1
12,54 м²
Комната 2
14,26 м²
Комната 3
12 м²
Ванная
5,53 м²
С/у
1,68 м²
2 Этаж площадь
22,57 м²
Лестница
2,13 м² (2 эт.)
Антресоль
20,44 м² (2 эт.)
планировка
все характеристики
все характеристики
жилой дом
Общая площадь
118.57 м²
1 Этаж площадь
96 м²
Прихожая
2,81 м²
Коридор
6,63 м²
Гостиная-столовая
26,67 м²
Кухня
10,28 м²
Техническое помещение
3,60 м²
Комната 1
12,54 м²
Комната 2
14,26 м²
Комната 3
12 м²
Ванная
5,53 м²
С/у
1,68 м²
2 Этаж площадь
22,57 м²
Лестница
2,13 м² (2 эт.)
Антресоль
20,44 м² (2 эт.)
экстерьер
гостиная-столовая
кухня
ванная
Остались вопросы?
Напиши нам.
Наш ведущий инженер свяжется с вами в ближайшее время.
Обязательно к заполнению
Обязательно к заполнению
ДАННЫЕ ПОЛУЧЕНЫ

данные успешно отправлены

Ведущий инженер компании свяжется с вами в ближайшее время.
мы используем файлы cookie
Используя сайт april-dom.ru, Вы соглашаетесь с использованием файлов cookie, которые указаны в Политике обработки Персональных данных.
/projects/a291/