a190
Проект одноэтажного дома, выполненный в современном стиле, с плоской крышей и большим остеклением.
Фасад дома выполнен в сочетании нескольких материалов и цветов: одна часть облицована серым кирпичом, другая выполнена из гладких деревянных панелей. Входная часть дома подчёркнута навесным карнизом белого цвета, который также фигурирует над гаражом.
Фасад дома выполнен в сочетании нескольких материалов и цветов: одна часть облицована серым кирпичом, другая выполнена из гладких деревянных панелей. Входная часть дома подчёркнута навесным карнизом белого цвета, который также фигурирует над гаражом.
о проекте
Современный дом с деревянной и кирпичной обшивкой — отличное решение для тех, кто хочет иметь комфортное функциональное и эстетичное жилье.
ЭТАЖНОСТЬ
1
ПЛОЩАДЬ
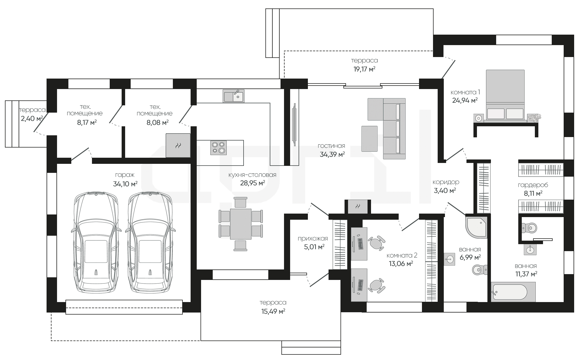
186.57 м²
ПАРАМЕТРЫ ПРОЕКТА
186.57 м²
Общая площадь
186.57 м²
Прихожая
5,01 м²
Гостиная
34,39 м²
Кухня-столовая
28,95 м²
Коридор
3,40 м²
Комната 1
24,94 м²
Гардероб
8,11 м²
Ванная
11,37 м²
Ванная
6,99 м²
Остались вопросы?
Напиши нам.
Напиши нам.
Наш ведущий инженер свяжется с вами в ближайшее время.
ДАННЫЕ ПОЛУЧЕНЫ
данные успешно отправлены
Ведущий инженер компании свяжется с вами в ближайшее время.
Дома 1 этаж
Дома 2 этажа
Дома 1 этаж с гаражом
Дома 120 м2
Дома 150 м2
Дома 2 этажа с гаражом
Дома 200 м2
Дома 250 м2
Дома 3 этажа
Дома в скандинавском стиле
Дома в стиле райта
Дома в стиле хайтек
Дома до 100 м2
Дома с гаражом
Дома с мансардой
Дома с сауной
Дома 1 этаж с гаражом и террасой
Дома 1 этаж с террасой
Дома в стиле барнхаус
Дома в стиле шале
Дома из газобетона
Дома из газобетона 1 этаж
Дома из камня
Дома из керамических блоков
Дома из кирпича
Дома из пеноблоков
Дома с зимним садом
Дома с подвалом
Дома с террасой
Дома с цокольным этажом
Фахверковые дома
Дома с бассейном