о проекте

Дизайн дома не только эстетичен, но и функционален, позволяя максимально использовать естественное освещение и окружающий ландшафт. Это говорит о том, что дом гармонично впишется в современный городской или загородный ландшафт.

ЭТАЖНОСТЬ
2
ПЛОЩАДЬ
301.73 м²
1
этаж
2
этаж
ПАРАМЕТРЫ ПРОЕКТА
301.73 м²
Общая площадь
301.73 м²
1 Этаж площадь
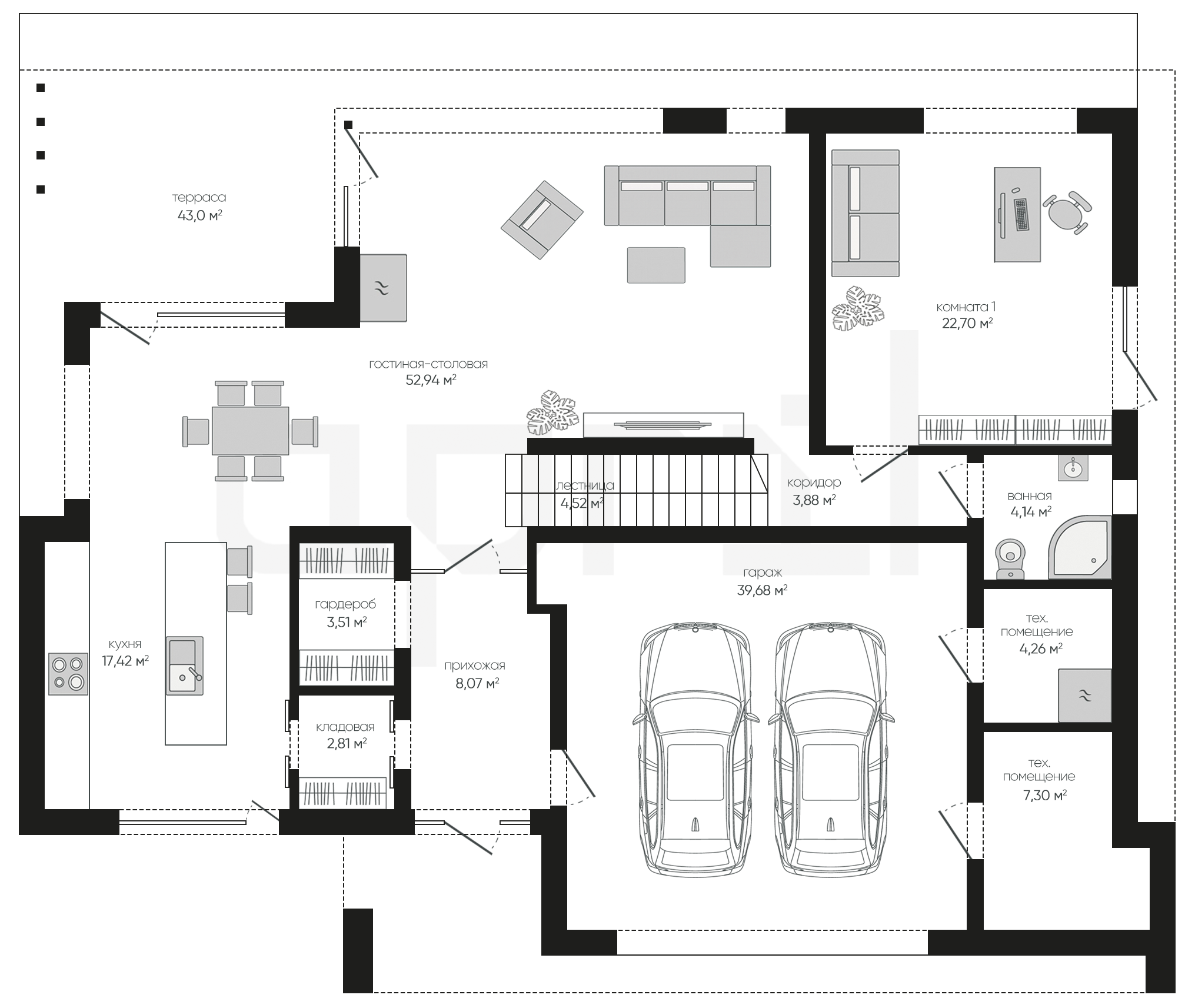
171,23 м²
Прихожая
8,07 м²
Гардероб
3,51 м²
Гостиная-столовая
52,94 м²
Кухня
17,42 м²
Кладовая
2,81 м²
Коридор
3,88 м²
Комната 1
22,70 м²
1 этаж
2 этаж
все характеристики
жилой дом
Общая площадь
301.73 м²
1 Этаж площадь
171,23 м²
Прихожая
8,07 м²
Гардероб
3,51 м²
Гостиная-столовая
52,94 м²
Кухня
17,42 м²
Кладовая
2,81 м²
Коридор
3,88 м²
Комната 1
22,70 м²
Ванная
4,14 м²
Лестница
4,52 м²
Техническое помещение
4,26 м²
Техническое помещение
7,30 м²
Гараж
39,68 м²
Терраса
43 м²
2 Этаж площадь
130,50 м²
Коридор
16,21 м² (2 эт.)
Гардероб
5,71 м² (2 эт.)
Комната 2
15,51 м² (2 эт.)
Комната 3
15,59 м² (2 эт.)
Комната 4
15,50 м² (2 эт.)
Комната 5
15,42 м² (2 эт.)
Гардероб
8,09 м² (2 эт.)
Ванная
6,22 м² (2 эт.)
Комната 6
12,38 м² (2 эт.)
Прачечная
9,97 м² (2 эт.)
Ванная
9,90 м² (2 эт.)
Балкон
12,93 м² (2 эт.)
Терраса
16,57 м² (2 эт.)
планировка
все характеристики
все характеристики
жилой дом
Общая площадь
301.73 м²
1 Этаж площадь
171,23 м²
Прихожая
8,07 м²
Гардероб
3,51 м²
Гостиная-столовая
52,94 м²
Кухня
17,42 м²
Кладовая
2,81 м²
Коридор
3,88 м²
Комната 1
22,70 м²
Ванная
4,14 м²
Лестница
4,52 м²
Техническое помещение
4,26 м²
Техническое помещение
7,30 м²
Гараж
39,68 м²
Терраса
43 м²
2 Этаж площадь
130,50 м²
Коридор
16,21 м² (2 эт.)
Гардероб
5,71 м² (2 эт.)
Комната 2
15,51 м² (2 эт.)
Комната 3
15,59 м² (2 эт.)
Комната 4
15,50 м² (2 эт.)
Комната 5
15,42 м² (2 эт.)
Гардероб
8,09 м² (2 эт.)
Ванная
6,22 м² (2 эт.)
Комната 6
12,38 м² (2 эт.)
Прачечная
9,97 м² (2 эт.)
Ванная
9,90 м² (2 эт.)
Балкон
12,93 м² (2 эт.)
Терраса
16,57 м² (2 эт.)
экстерьер
Остались вопросы?
Напиши нам.
Наш ведущий инженер свяжется с вами в ближайшее время.
Обязательно к заполнению
Обязательно к заполнению
ДАННЫЕ ПОЛУЧЕНЫ

данные успешно отправлены

Ведущий инженер компании свяжется с вами в ближайшее время.
мы используем файлы cookie
Используя сайт april-dom.ru, Вы соглашаетесь с использованием файлов cookie, которые указаны в Политике обработки Персональных данных.
/projects/a173/