о проекте

Двухэтажный дом с эркером высотой на все два этажа, что существенно добавляет дневного света в гостиную и в большую спальню на втором этаже. Застекленная лоджия дает возможность насладиться видом в любую погоду, а просторная терраса является отличным местом для отдыха на свежем воздухе.

ЭТАЖНОСТЬ
2
ПЛОЩАДЬ
244,68 м²
ПАРАМЕТРЫ ПРОЕКТА
244,68 м²
Общая площадь
244,68 м²
1 Этаж площадь
122,35 м²
Тамбур
5,50 м²
Прихожая
4,09 м²
С/у
3,65 м²
Коридор
5,35 м²
Холл
13,82 м²
Гостиная
22,81 м²
Столовая
16,93 м²
все характеристики
жилой дом
Общая площадь
244,68 м²
1 Этаж площадь
122,35 м²
Тамбур
5,50 м²
Прихожая
4,09 м²
С/у
3,65 м²
Коридор
5,35 м²
Холл
13,82 м²
Гостиная
22,81 м²
Столовая
16,93 м²
Кухня
13,53 м²
Терасса
24,39 м²
Техническое помещение
9,18 м²
Гараж
27,49 м²
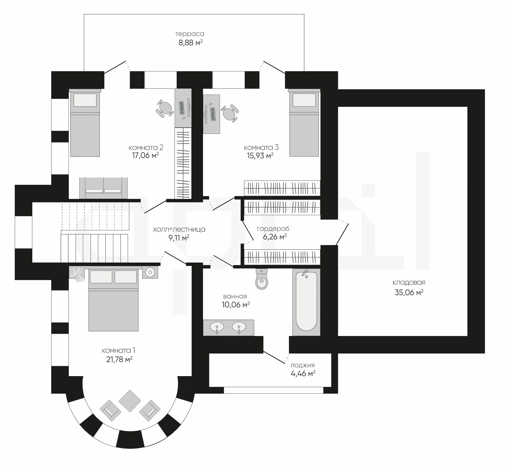
2 Этаж площадь
122,33 м²
Коридор
9,02 м² (2 эт.)
Комната 1
22,28 м² (2 эт.)
Комната 2
15,77 м² (2 эт.)
Терраса
14,47 м² (2 эт.)
Кабинет
16,93 м² (2 эт.)
Ванная комната
9,92 м² (2 эт.)
Лоджия
5,09 м² (2 эт.)
Гардероб
6,26 м² (2 эт.)
Кладовая
35,06 м² (2 эт.)
планировка
все характеристики
все характеристики
жилой дом
Общая площадь
244,68 м²
1 Этаж площадь
122,35 м²
Тамбур
5,50 м²
Прихожая
4,09 м²
С/у
3,65 м²
Коридор
5,35 м²
Холл
13,82 м²
Гостиная
22,81 м²
Столовая
16,93 м²
Кухня
13,53 м²
Терасса
24,39 м²
Техническое помещение
9,18 м²
Гараж
27,49 м²
2 Этаж площадь
122,33 м²
Коридор
9,02 м² (2 эт.)
Комната 1
22,28 м² (2 эт.)
Комната 2
15,77 м² (2 эт.)
Терраса
14,47 м² (2 эт.)
Кабинет
16,93 м² (2 эт.)
Ванная комната
9,92 м² (2 эт.)
Лоджия
5,09 м² (2 эт.)
Гардероб
6,26 м² (2 эт.)
Кладовая
35,06 м² (2 эт.)
Остались вопросы?
Напиши нам.
Наш ведущий инженер свяжется с вами в ближайшее время.
Обязательно к заполнению
Обязательно к заполнению
ДАННЫЕ ПОЛУЧЕНЫ

данные успешно отправлены

Ведущий инженер компании свяжется с вами в ближайшее время.
мы используем файлы cookie
Используя сайт april-dom.ru, Вы соглашаетесь с использованием файлов cookie, которые указаны в Политике обработки Персональных данных.
/portfolio/a136/