о проекте

Одноэтажный дом в классическом стиле с примыкающим гаражом и навесом для машины.<br> Дом имеет удобную функциональную планировку и зону отдыха с хаммамом.

ЭТАЖНОСТЬ
1
ПЛОЩАДЬ
192.47 м²
1
этаж
ПАРАМЕТРЫ ПРОЕКТА
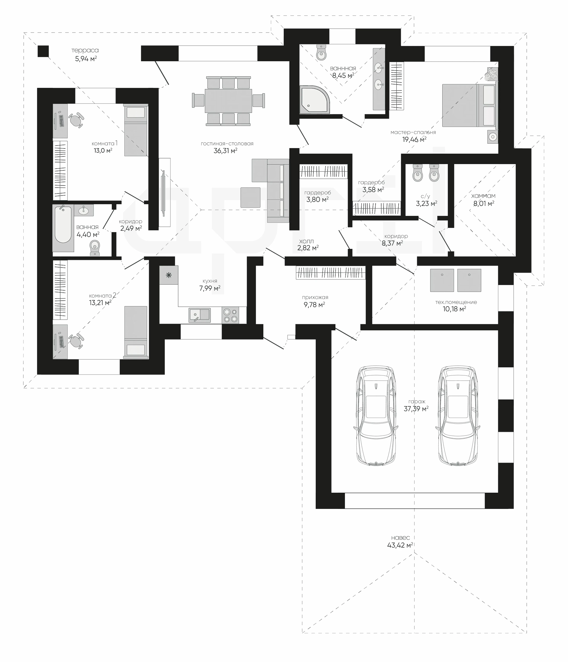
192.47 м²
Общая площадь
192.47 м²
Прихожая
9,78 м²
Холл
2,82 м²
Гостиная+столовая
36,31 м²
Кухня
7,99 м²
Коридор
2,49 м²
Комната 1
13 м²
Ванная комната
4,40 м²
Комната 2
13,21 м²
1 этаж
все характеристики
жилой дом
Общая площадь
192.47 м²
Прихожая
9,78 м²
Холл
2,82 м²
Гостиная+столовая
36,31 м²
Кухня
7,99 м²
Коридор
2,49 м²
Комната 1
13 м²
Ванная комната
4,40 м²
Комната 2
13,21 м²
Мастер-спальня
19,46 м²
Гардероб
3,58 м²
Ванная комната
8,45 м²
Гардероб
3,80 м²
Коридор
8,37 м²
С/у
3,23 м²
Хаммам
8,01 м²
Техническое помещение
10,18 м²
Гараж
37,39 м²
Навес
43,42 м²
Терраса
5,94 м²
планировка
все характеристики
все характеристики
жилой дом
Общая площадь
192.47 м²
Прихожая
9,78 м²
Холл
2,82 м²
Гостиная+столовая
36,31 м²
Кухня
7,99 м²
Коридор
2,49 м²
Комната 1
13 м²
Ванная комната
4,40 м²
Комната 2
13,21 м²
Мастер-спальня
19,46 м²
Гардероб
3,58 м²
Ванная комната
8,45 м²
Гардероб
3,80 м²
Коридор
8,37 м²
С/у
3,23 м²
Хаммам
8,01 м²
Техническое помещение
10,18 м²
Гараж
37,39 м²
Навес
43,42 м²
Терраса
5,94 м²
экстерьер
фасад
Остались вопросы?
Напиши нам.
Наш ведущий инженер свяжется с вами в ближайшее время.
Обязательно к заполнению
Обязательно к заполнению
ДАННЫЕ ПОЛУЧЕНЫ

данные успешно отправлены

Ведущий инженер компании свяжется с вами в ближайшее время.
мы используем файлы cookie
Используя сайт april-dom.ru, Вы соглашаетесь с использованием файлов cookie, которые указаны в Политике обработки Персональных данных.
/portfolio/a131/